ホーム
邦栄会について
法人概要
沿革
理念
施設のご案内
特別養護老人ホーム
雅之園
特別養護老人ホーム
双寿園・第2双寿園
在宅複合型施設
楽寿苑
伊勢市北地域包括支援センター
採用情報
定款
役員名簿
役員報酬規定
事業報告(WAM NET)
ご利用者の気持ちに寄り添う心を大切に、在宅介護に特化したサービスを提供いたします。
ショートステイ
定員26名(全室個室、洗面所・トイレ完備)
デイサービス 定員・標準型30名/日 ・認知症型12名/日 【営業時間7:00~19:00】
ヘルパー・ステーション
居宅介護支援事業所
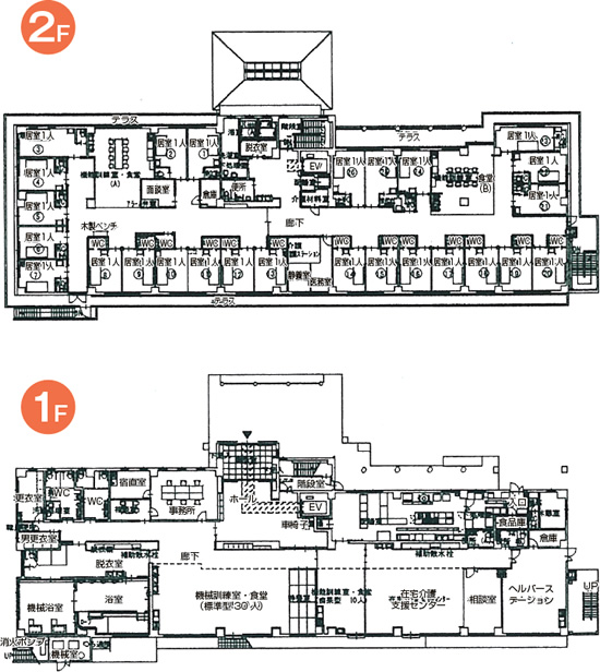
施設概要
Facility Outline
●所在地
/
伊勢市馬瀬町1065
●施設開園
/
平成16年4月1日
●延床面積
/
1,735.40m
2
●居室
/
個室26室
●設置経営主体
/
社会福祉法人 邦栄会
●敷地面積
/
3,000.71m
2
●建物構造
/
鉄筋コンクリート造2階建
●共同施設
/
食堂、浴室、機械浴室、機能訓練室、医務室、相談室、面談室
▲画像クリックで拡大画像が表示されます。
在宅複合型施設 楽寿苑
住所
〒516-0002 伊勢市馬瀬町1065
TEL:0596-31-0030 FAX:0596-36-6188
交通のご案内
伊勢市駅から車で約10分
三交バス/「伊勢市駅停」より、【大湊行】に乗車「新開停」または「フリー馬瀬口停」下車徒歩約2分
楽寿苑へのお問合せは TEL.0596-31-0030
TOP